GR
EN
οι κάψουλες
Το One Living έχει σχεδιαστεί
ως τάση του μέλλοντος
Σύνολο: 28m
2
ΠΕΡΙΣΣΟΤΕΡΑ
Σύνολο: 38m
2
ΠΕΡΙΣΣΟΤΕΡΑ
Σύνολο: 43m
2
ΠΕΡΙΣΣΟΤΕΡΑ
Σύνολο: 53m
2
ΠΕΡΙΣΣΟΤΕΡΑ
Σύνολο: 53m
2
ΠΕΡΙΣΣΟΤΕΡΑ
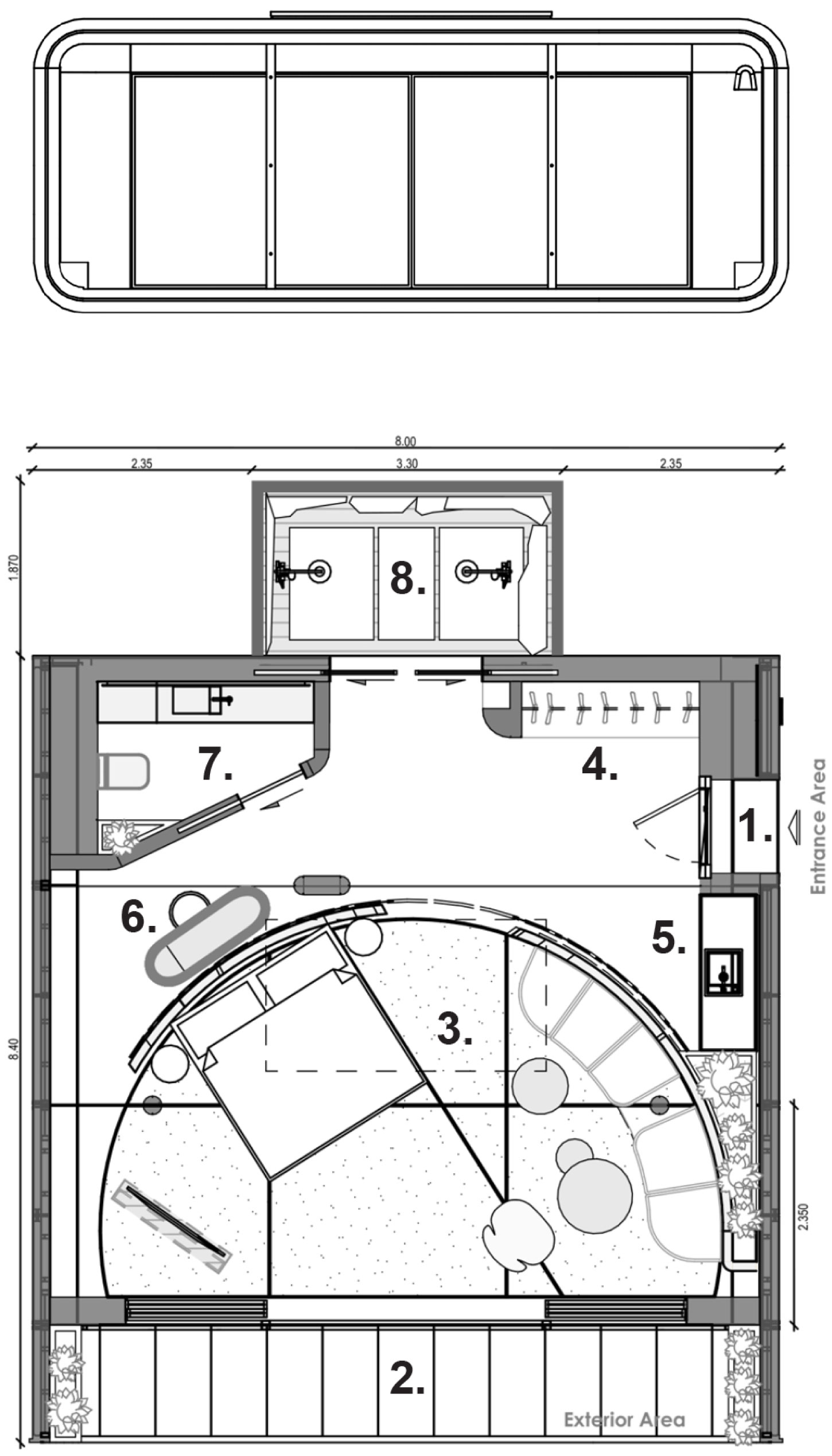
Σύνολο: 73m
2
ΠΕΡΙΣΣΟΤΕΡΑ
η κάψουλα
ΠΕΡΙΣΣΟΤΕΡΑ
eξοπλισμός & επίπλωση
ΠΕΡΙΣΣΟΤΕΡΑ
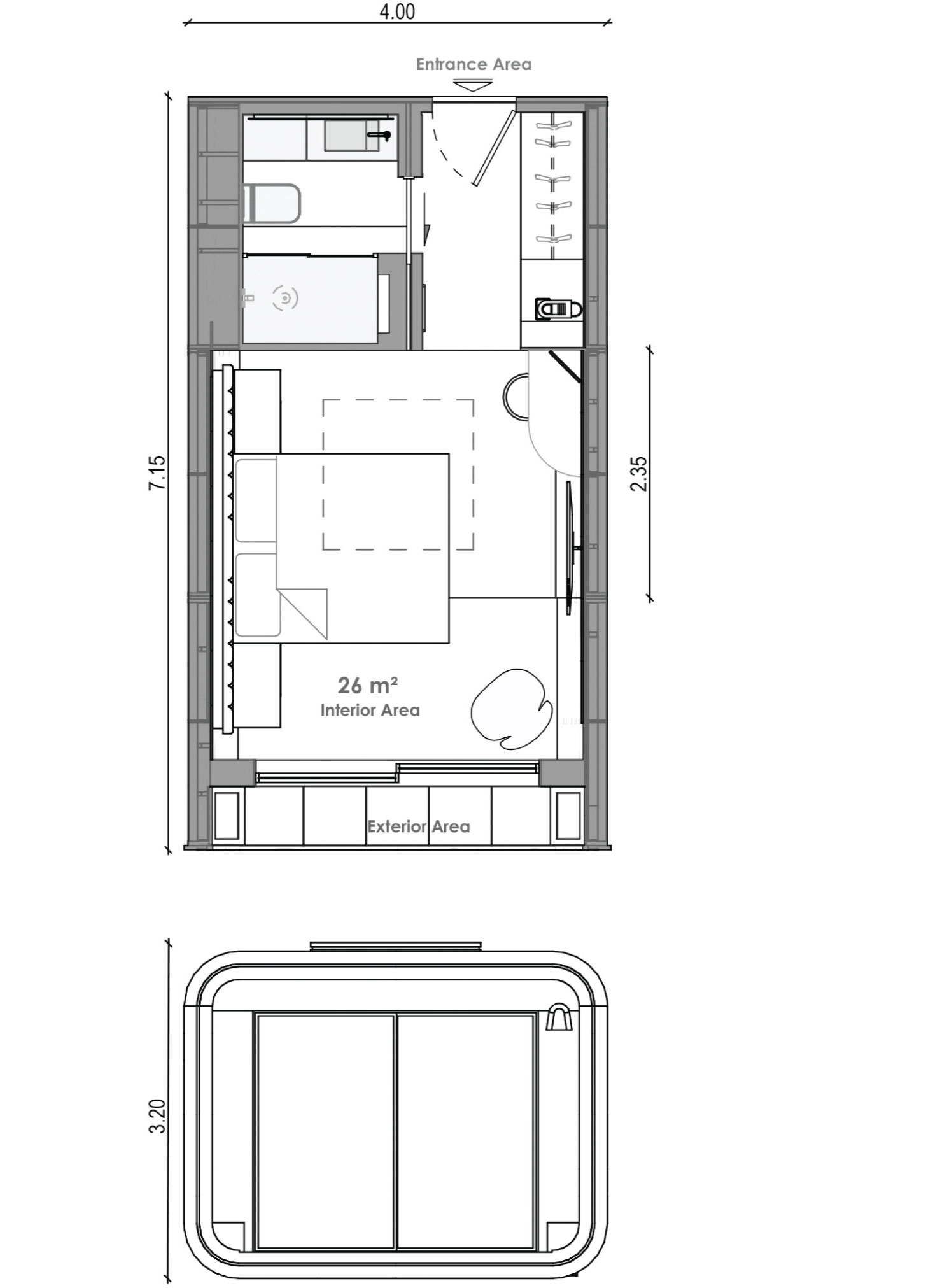
Διαστάσεις
εσωτερικός χώρος: 26m
2
σύνολο: 28m
2
μήκος: 7.15m
πλάτος: 4.00m
ύψος: 3.20m
Χώροι
η κάψουλα
ΠΕΡΙΣΣΟΤΕΡΑ
eξοπλισμός & επίπλωση
ΠΕΡΙΣΣΟΤΕΡΑ
Διαστάσεις
εσωτερικός χώρος: 31m
2
σύνολο: 38m
2
μήκος: 9.50m
πλάτος: 4.00m
ύψος: 3.20m
Χώροι
η κάψουλα
ΠΕΡΙΣΣΟΤΕΡΑ
eξοπλισμός & επίπλωση
ΠΕΡΙΣΣΟΤΕΡΑ
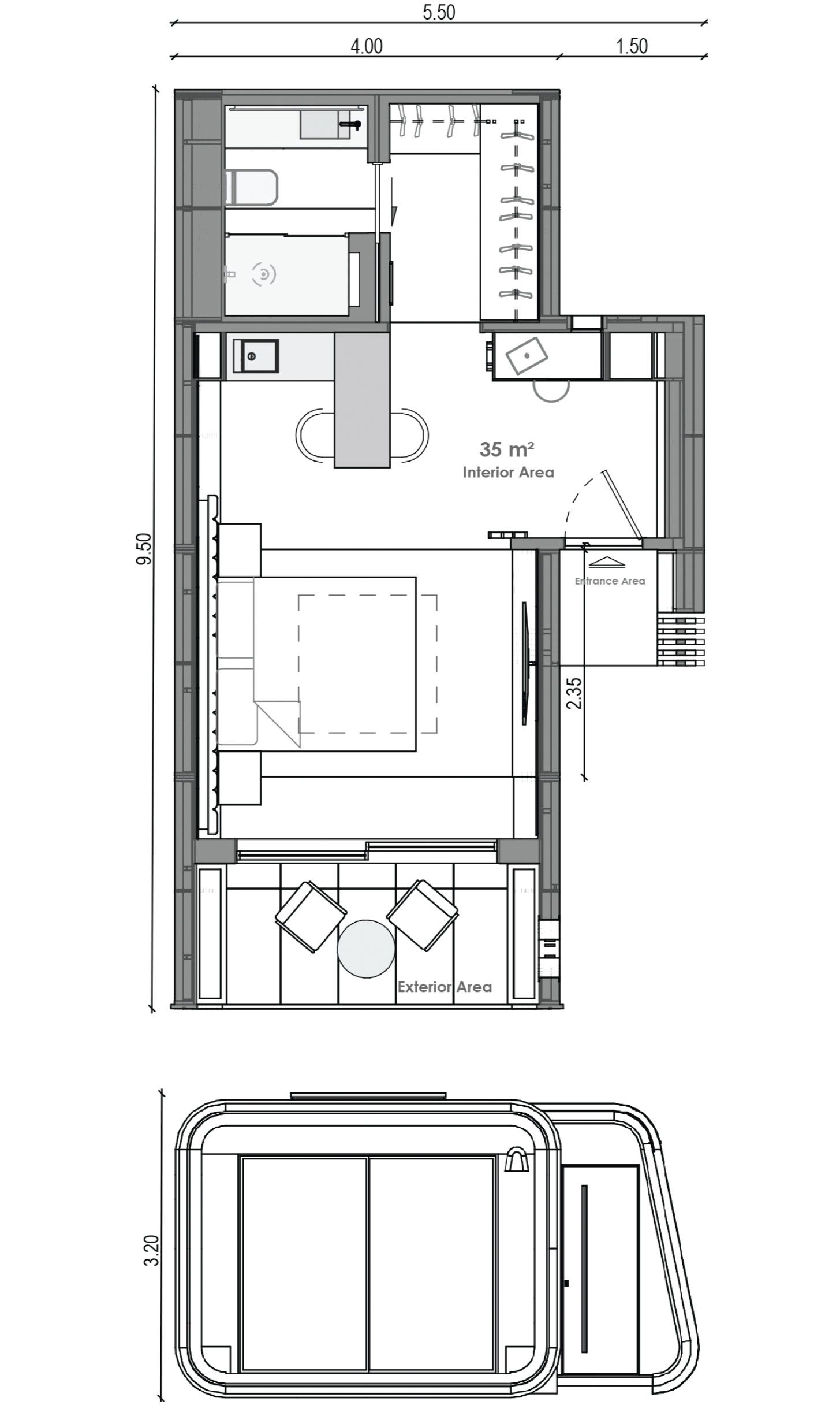
Διαστάσεις
εσωτερικός χώρος: 35m
2
σύνολο: 43m
2
μήκος: 9.50m
πλάτος: 5.50m
ύψος: 3.20m
Χώροι
η κάψουλα
ΠΕΡΙΣΣΟΤΕΡΑ
eξοπλισμός & επίπλωση
ΠΕΡΙΣΣΟΤΕΡΑ
Διαστάσεις
εσωτερικός χώρος: 42m
2
σύνολο: 53m
2
μήκος: 12.50m
πλάτος: 5.50m
ύψος: 3.20m
Χώροι
η κάψουλα
ΠΕΡΙΣΣΟΤΕΡΑ
eξοπλισμός & επίπλωση
ΠΕΡΙΣΣΟΤΕΡΑ
Διαστάσεις
εσωτερικός χώρος: 45m
2
σύνολο: 53m
2
μήκος: 11.90m
πλάτος: 5.50m
ύψος: 3.20m
Χώροι
η κάψουλα
ΠΕΡΙΣΣΟΤΕΡΑ
eξοπλισμός & επίπλωση
ΠΕΡΙΣΣΟΤΕΡΑ
Διαστάσεις
εσωτερικός χώρος: 60m
2
σύνολο: 73m
2
μήκος: 10.30m
πλάτος: 8.00m
ύψος: 3.20m
Χώροι
η κάψουλα
Εξωτερικά εφαρμογή ειδικής επίστρωσης ακρυλικής πάστας και εσωτερικά διακοσμητικό επίχρισμα Element 10
Υφαντό βινυλικό δάπεδο με ξενοδοχειακές προδιαγραφές
Διακοσμητικές επιφάνειες με όψη ξύλου
Φεγγίτης οροφής με ηλεκτρικό σκίαστρο (1.5x1.5)
Συρόμενο επάλληλο κούφωμα αλουμινίου με διπλά ενεργειακά τζάμια
Ξενοδοχειακή πόρτα εισόδου από αλουμίνιο με θερμοδιακοπή
Πλακάκι δαπέδου εξωτερικού χώρου
Επένδυση τοίχου WC με πλακάκι και πλήρως εξοπλισμένο μπάνιο
Βεστιάριο walk - in closet
Boudoir - Office desk
eξοπλισμός & επίπλωση
Κλιματισμός Inverter (θέρμανση - ψύξη) συνδεδεμένος με αντλία θερμότητας για παροχή ζεστού νερού
Μη κεντρικό - οικιακό σύστημα αερισμού με εναλλάκτη ανάκτησης θερμότητας
Ηλεκτρικός μηχανισμός κουρτίνας
Κρεβάτι king size με στρώμα πολυτελείας (1.80x2.00) και δύο κομοδίνα
Δύο πολυθρόνες εσωτερικού χώρου
Δύο διακοσμητικά τραπεζάκια
Σκαμπό Boudoir
Καθιστικό set βεράντας
Διακοσμητικά στοιχεία υψηλής ποιότητας
Φωτιστικά επιτραπέζια
Smart TV 55''
Ηλεκτρικές μικροσυσκευές (σεσουάρ μαλλιών. χρηματοκιβώτιο. σύστημα σιδερώματος. μηχανή nespresso)
Mini bar
Έξυπνο σύστημα διαχείρισης Smart Home Plus ON DEMAND
TOP
σχετικά
η ιστορία
γιατί ONE living...
βραβεία
νέα & τύπος
οι κάψουλες
πως λειτουργεί...
διαδικασία παραγγελίας
& πληρωμή
κατασκευή
μεταφορά
εγκατάσταση
ερωτήσεις
επικοινωνία